Viviendas Pasaje Harrington Lotes del 1-7
Date
1981
Journal Title
Journal ISSN
Volume Title
Publisher
Universidad de Valparaíso
Authors
Abstract
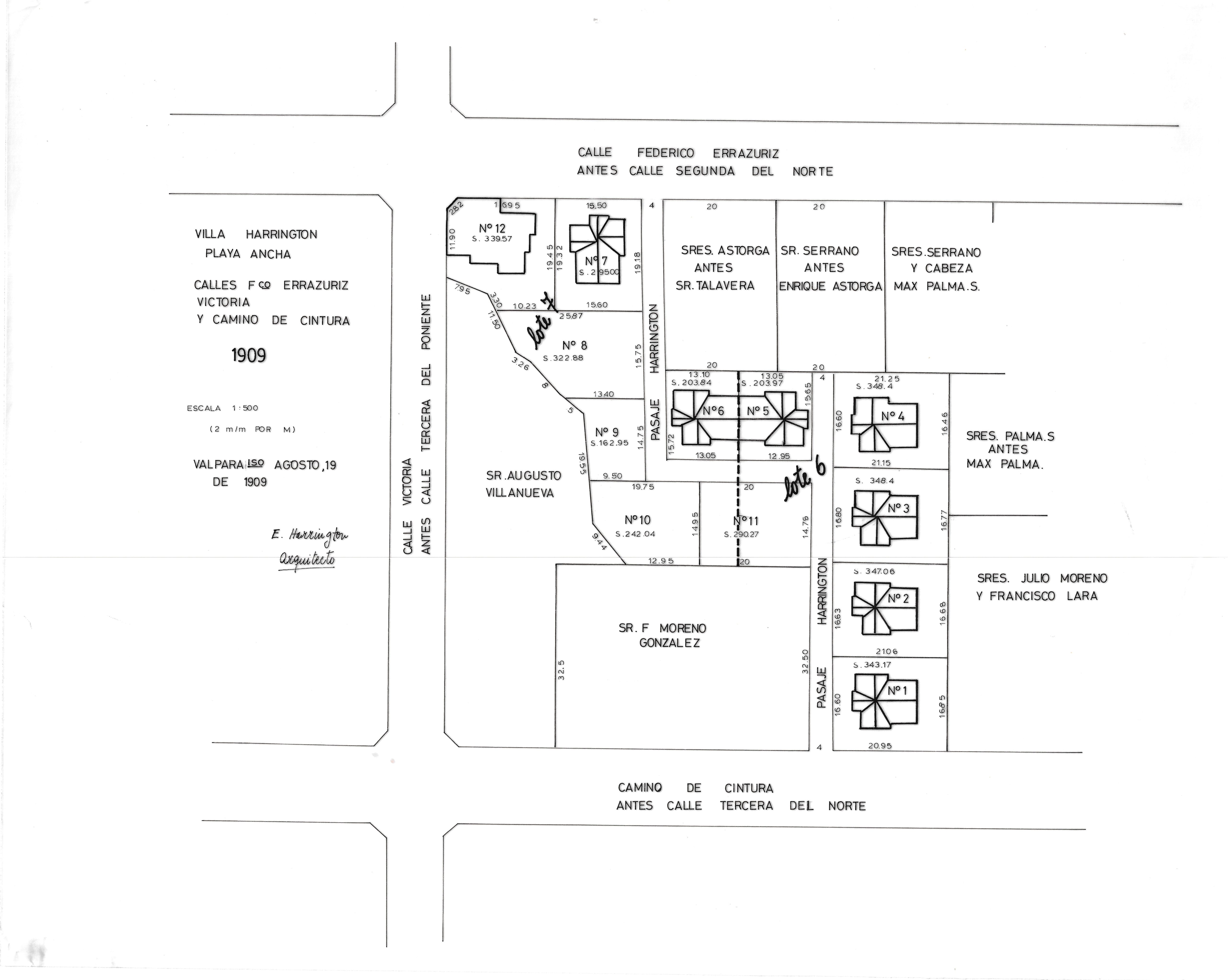
El plano arquitectónico de una Vivienda de clase media de la época responde a las necesidades de una familia típica de este estrato social. La superficie construida es de aproximadamente 200 m2 y se distribuye en dos niveles. El primer piso alberga la zona de recepción, con sala y comedor, y el área de servicios. El segundo piso, por su parte, comprende la zona privada, con cinco dormitorios y un baño.
El plano se organiza con una circulación mínima, lo que permite una relación funcional clara entre los espacios. Todas las habitaciones cuentan con iluminación natural. A pesar de la falta de vistas al mar, la solución del plano es lo suficientemente flexible como para garantizar una exposición solar adecuada en todas las posiciones. Incluso permite la posibilidad de unir dos viviendas.
La madera predomina tanto en la estructura como en los acabados, con una elaboración sencilla. Sin embargo, el tratamiento volumétrico y las elevaciones vinculan la obra a la tendencia Neogótica del movimiento historicista. Este estilo arquitectónico, aún cultivado a nivel mundial, es demostrado con habilidad por el arquitecto Esteban Harrington, a pesar de su formación nacional.
The architectural plan of a middle-class House of the time meets the needs of a typical family of this social stratum. The built surface is approximately 200 m2 and is distributed over two levels. The first floor houses the reception area, with a living room and dining room, and the service area. The second floor, on the other hand, comprises the private area, with five bedrooms and a bathroom. The plan is organized with a minimum circulation, which allows a clear functional relationship between the spaces. All rooms have natural light. Despite the lack of views of the sea, the solution of the plan is flexible enough to guarantee adequate solar exposure in all positions. It even allows the possibility of joining two houses. Wood predominates both in the structure and in the finishes, with a simple elaboration. However, the volumetric treatment and the elevations link the work to the Neogothic trend of the historicist movement. This architectural style, still cultivated worldwide, is demonstrated with skill by architect Esteban Harrington, despite his national training.
The architectural plan of a middle-class House of the time meets the needs of a typical family of this social stratum. The built surface is approximately 200 m2 and is distributed over two levels. The first floor houses the reception area, with a living room and dining room, and the service area. The second floor, on the other hand, comprises the private area, with five bedrooms and a bathroom. The plan is organized with a minimum circulation, which allows a clear functional relationship between the spaces. All rooms have natural light. Despite the lack of views of the sea, the solution of the plan is flexible enough to guarantee adequate solar exposure in all positions. It even allows the possibility of joining two houses. Wood predominates both in the structure and in the finishes, with a simple elaboration. However, the volumetric treatment and the elevations link the work to the Neogothic trend of the historicist movement. This architectural style, still cultivated worldwide, is demonstrated with skill by architect Esteban Harrington, despite his national training.
Description
Plano s/n: Calles Francisco Errázuriz Victoria y Camino Cintura 1909. Plano s/n: Las viviendas y sus dependencias posteriores. Plano no. 8: Regimiento Maipo, Gran Bretaña 766. Plano no.49: Vivienda Pasaje Harrington no.237.
Keywords
Waisberg, Myriam, Casas históricas, Valparaíso


