Casa Uriarte
Date
1951
Journal Title
Journal ISSN
Volume Title
Publisher
Universidad de Valparaíso
Authors
Abstract
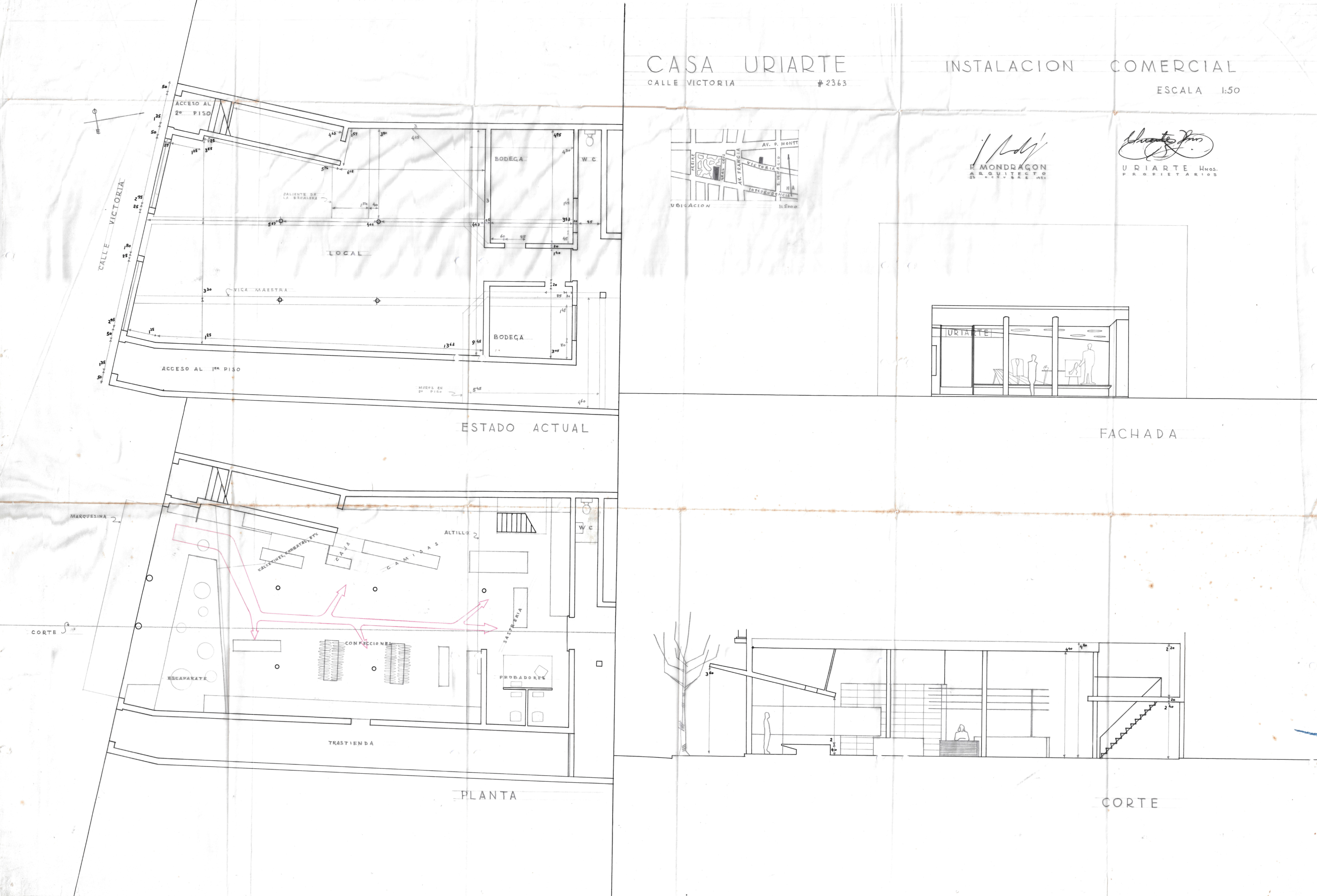
Se incluye un plano de la casa Uriarte ubicada en Calle Victoria 2363 en donde se aprecia el estado actual de la planta en escala 1:50, vista de fachada y corte. Además, contempla un croquis pintado con acuarelas.
Description
1 plano; papel diamante + 1 croquis; papel bond
Keywords
Plano casa, Croquis


