Banco Español-Chile
Date
S/F
Journal Title
Journal ISSN
Volume Title
Publisher
Universidad de Valparaíso
Authors
Mondragón, Pablo
Abstract
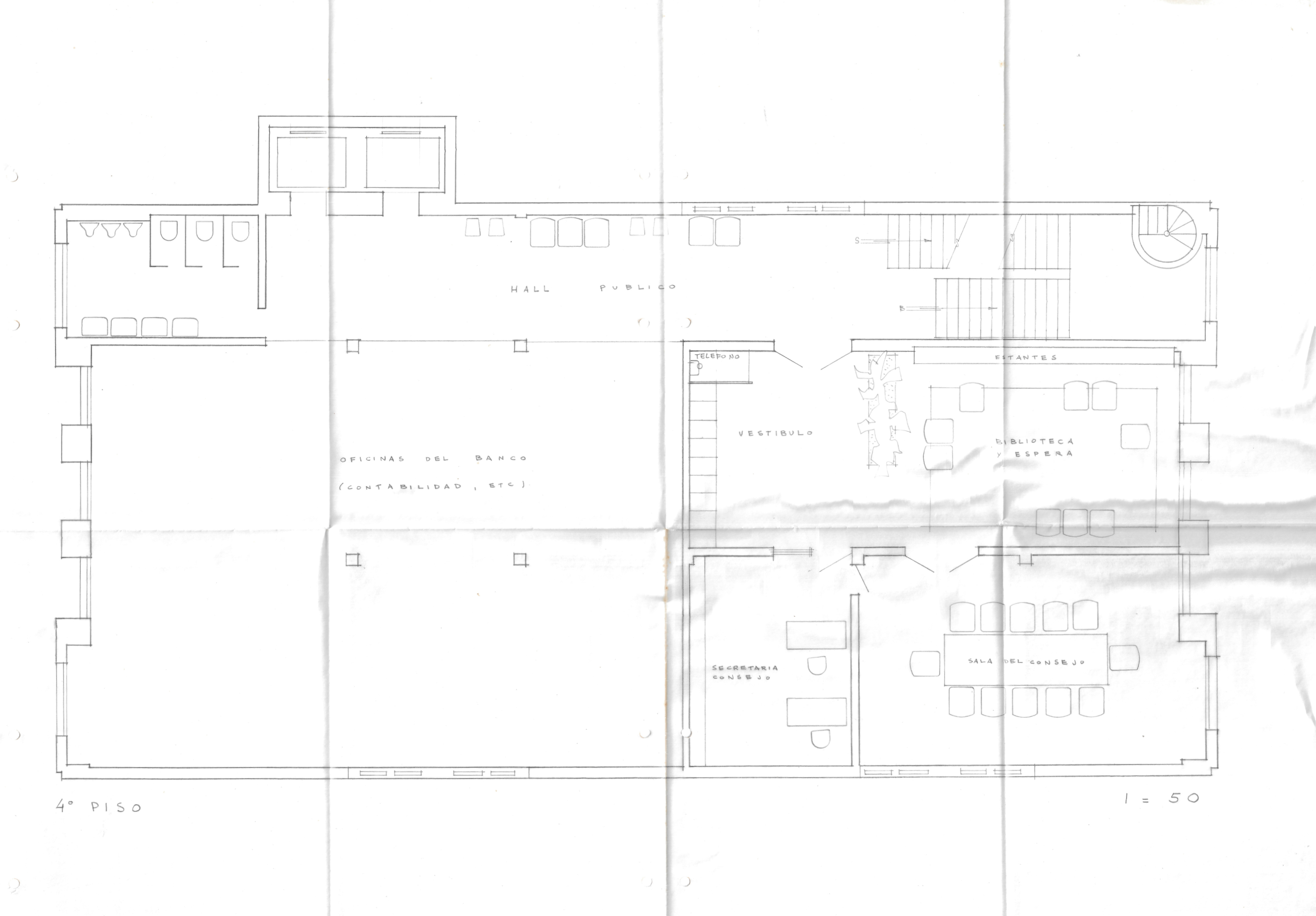
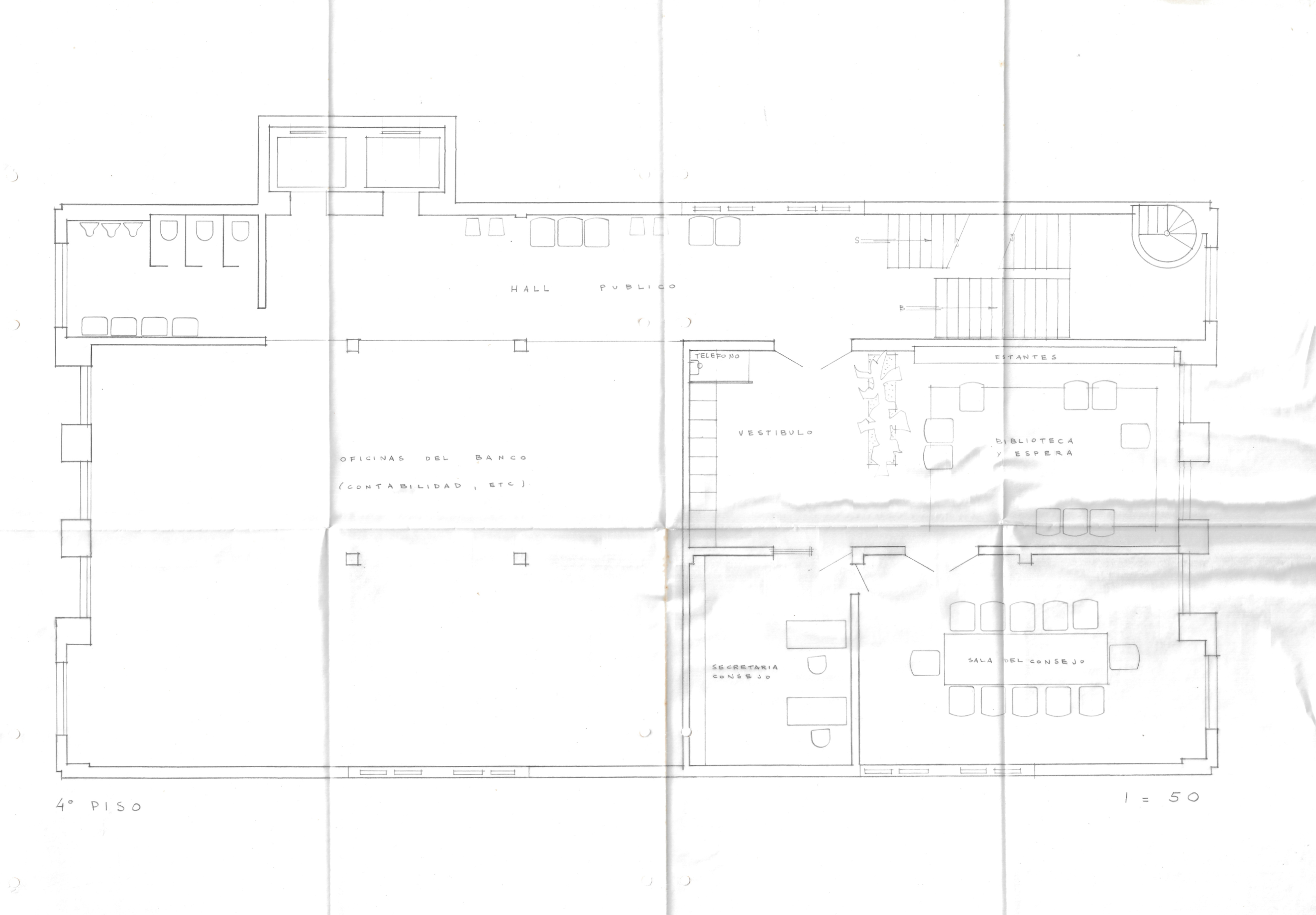
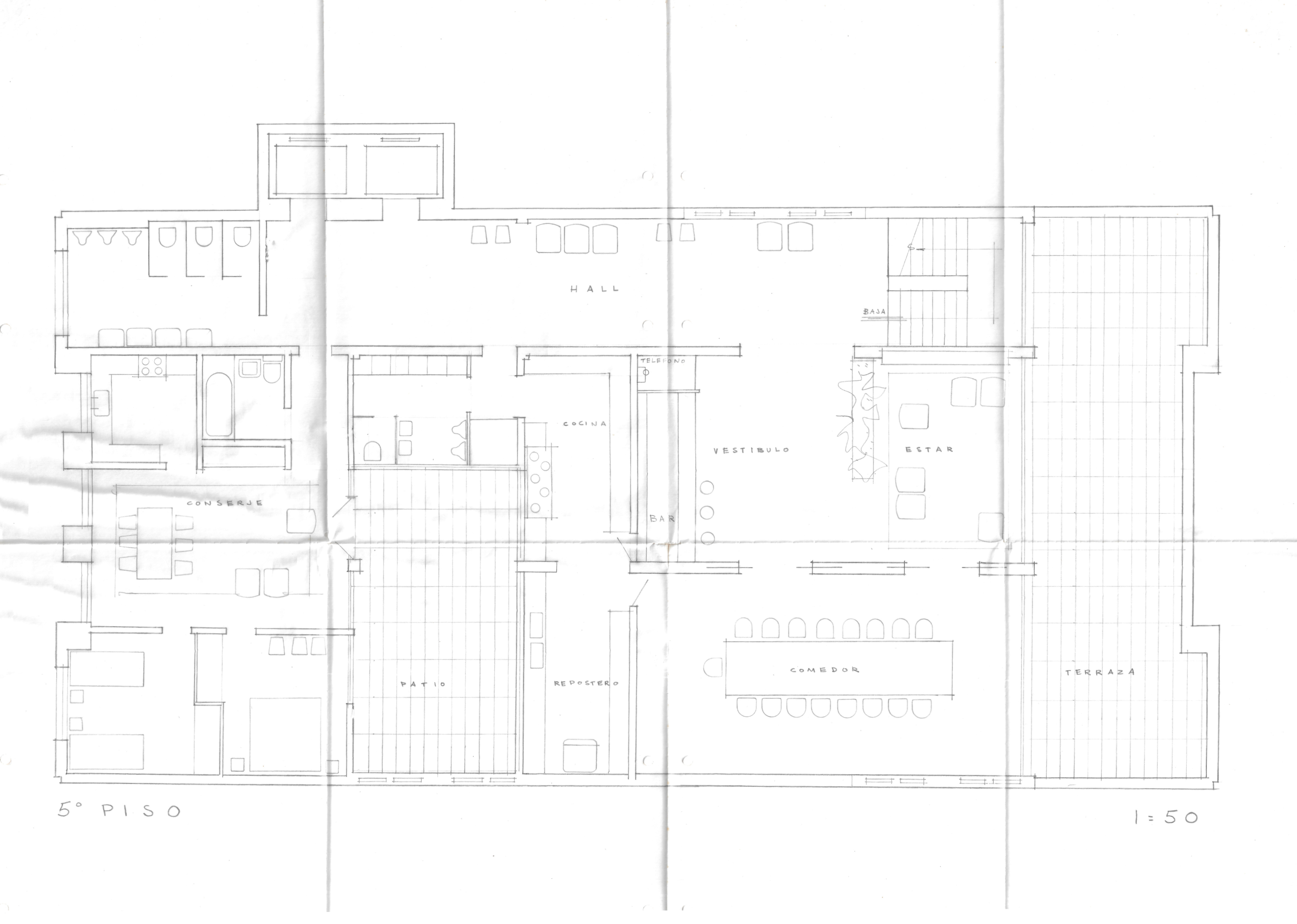
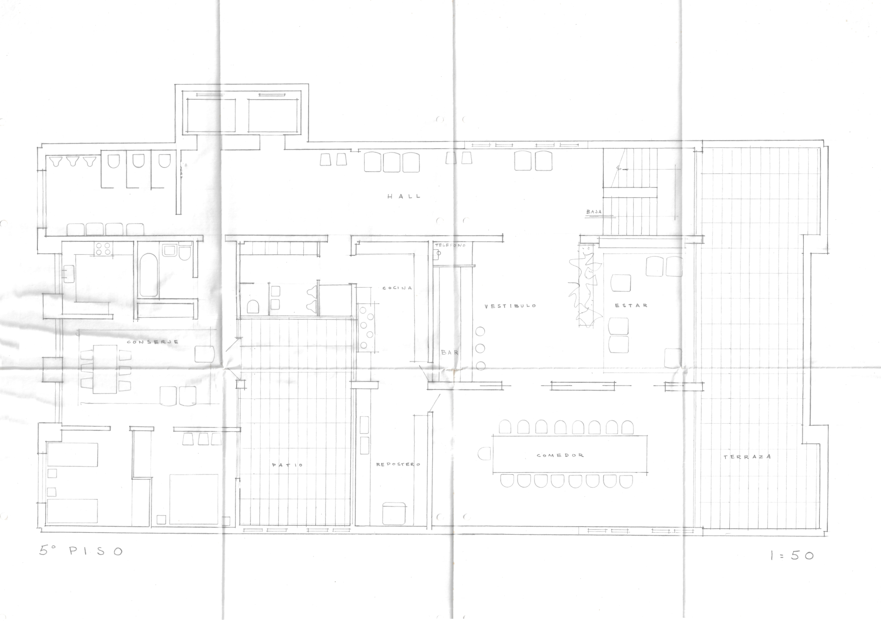
El proyecto Banco Español–Chile está compuesto por diversas tipologías que registran tanto la estructura interna del edificio como las transformaciones propuestas en su exterior. Incluye croquis de modificaciones en la fachada y un croquis adicional de la misma acompañado por un esquema de funcionamiento, ambos realizados a lápiz mina, además de una fotografía en blanco y negro que muestra la fachada original del inmueble. A esto se suman los planos generales del primer, segundo, tercer, cuarto y quinto piso del edificio, todos elaborados a escala 1:50, los cuales permiten comprender de manera detallada la distribución arquitectónica de cada nivel y su relación con las intervenciones proyectadas.
Description
5 planos; papel diamante + 2 croquis; papel diamante + 1 fotografía blanco y negro
Keywords
Plano banco, Croquis, Fotografía


