Población COIA
Fecha
S/F
Título de la revista
ISSN de la revista
Título del volumen
Editor
Universidad de Valparaíso
Autores
Resumen
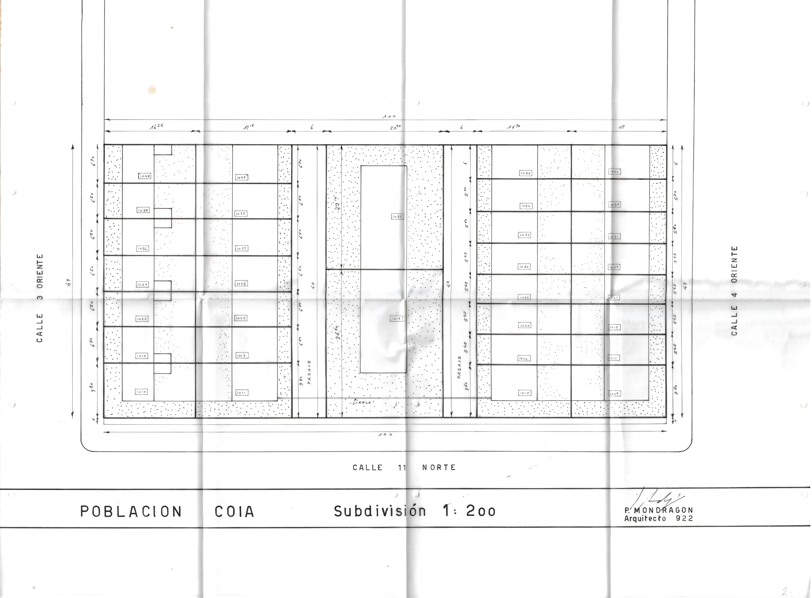
La Población COIA se ubica en la comuna de Viña del Mar. Está compuesto por diversas versiones del proyecto y anteproyecto de subdivisión, todos desarrollados en escala 1:200. Los planos presentan variaciones propias del proceso de diseño, incorporando anotaciones y observaciones técnicas que indican ajustes necesarios, como “Rectificar trazado, verificar tamaño lote” y “ojo agregar jardín”, esta última señalada en lápiz pasta roja. Algunos planos incluyen cálculos y anotaciones en lápiz pasta rojo y verde, mientras que uno de ellos incorpora simbología para diferenciar lo construido (X) de lo proyectado (/), además de anotaciones en lápiz pasta azul y un bosquejo al reverso. En conjunto, estos planos reflejan las distintas etapas de revisión y desarrollo del diseño parcelario de la subdivisión COIA.
Descripción
7 planos; papel bond
Palabras clave
Plano casa


