Banco Español-Chile Sucursal Viña del Mar
Date
S/F
Journal Title
Journal ISSN
Volume Title
Publisher
Universidad de Valparaíso
Authors
Abstract
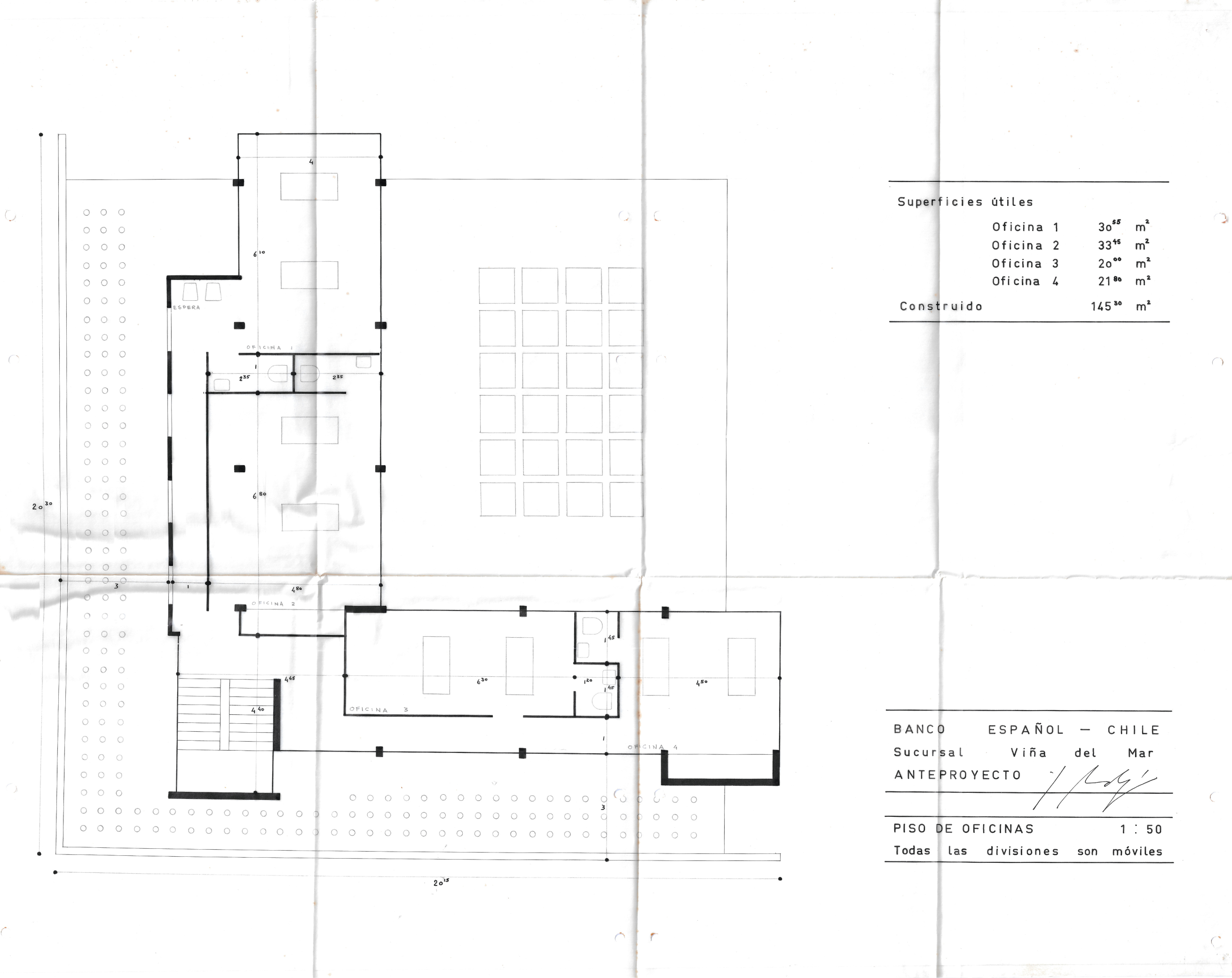
El anteproyecto de la Sucursal Viña del Mar del Banco Español-Chile, desarrollado íntegramente en escala 1:50. Incluye el plano del primer piso, donde se representa la distribución general del nivel de acceso; el plano del piso de oficinas, en el cual se especifica que todas las divisiones son móviles y se organizan cuatro oficinas que totalizan 145,30 m² construidos; el piso principal, presentado mediante su planta arquitectónica; y finalmente el plano del altillo, que detalla su configuración y características constructivas. En conjunto, estos documentos permiten visualizar la estructura funcional propuesta para cada nivel de la sucursal.
Description
4 planos; papel diamante
Keywords
Plano


