Club Español de Campo Reñaca
Date
S/F
Journal Title
Journal ISSN
Volume Title
Publisher
Universidad de Valparaíso
Authors
Abstract
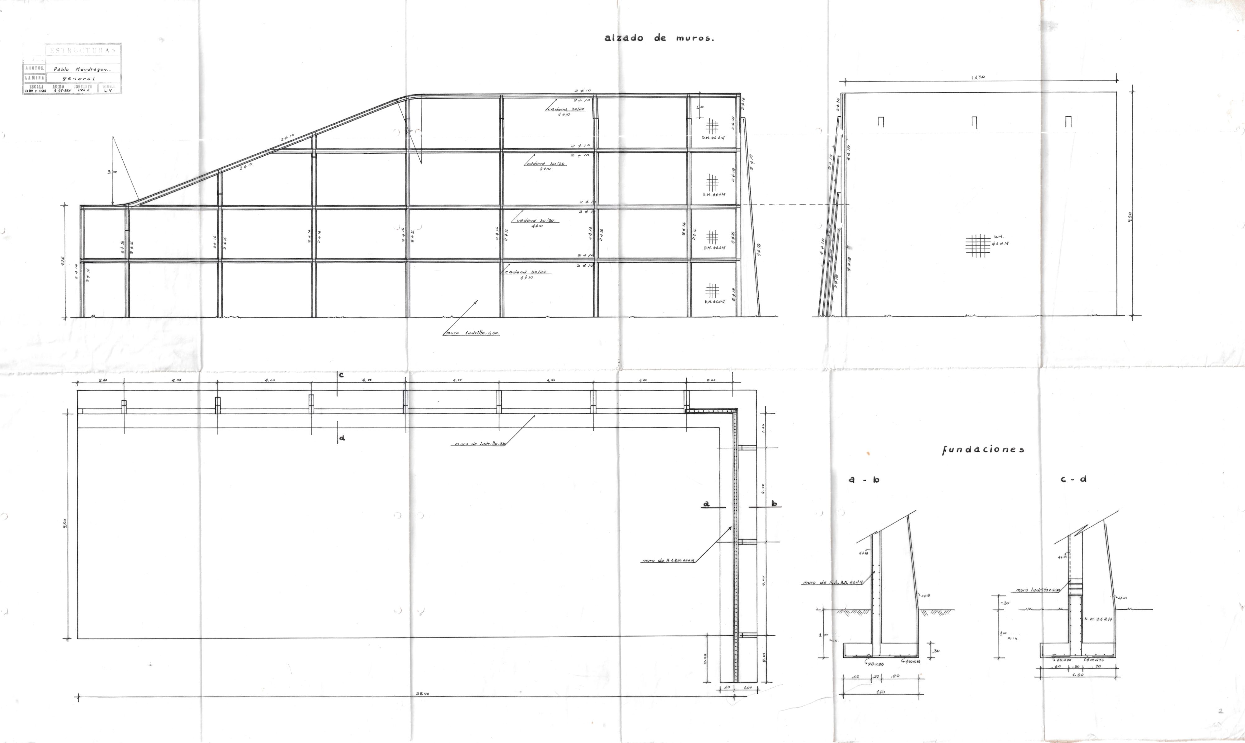
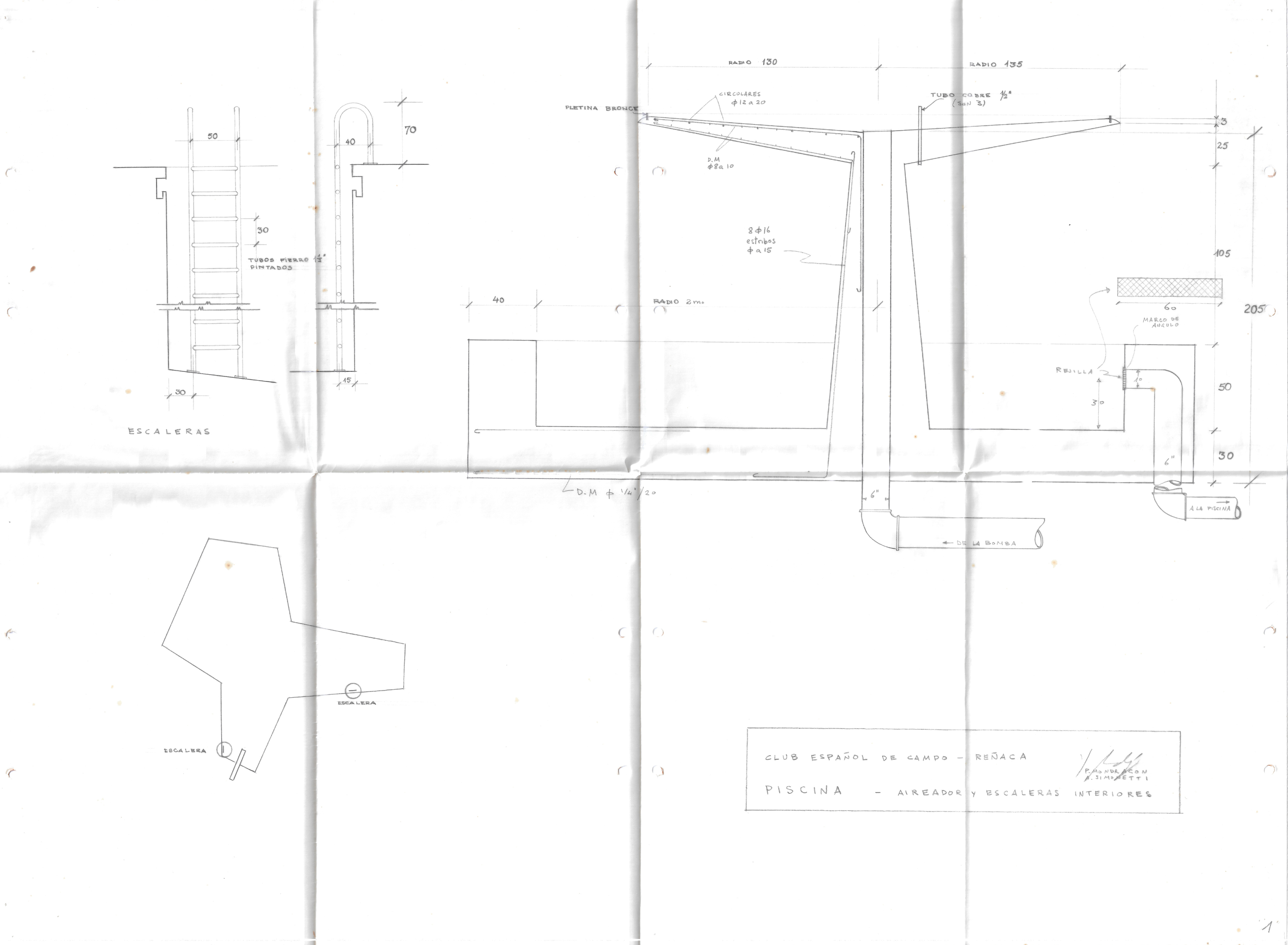
El proyecto correspondiente al Club Español de Campo en Reñaca reúne una amplia variedad de planos, croquis y documentos técnicos que abarcan desde cálculos y detalles de excavación y hormigón, hasta el diseño arquitectónico y estructural de distintos espacios del recinto. Incluye planos del primer piso en escala 1:50, láminas con cimientos, fachadas y detalles constructivos (en escalas 1:50, 1:20 y 1:10), así como documentación específica sobre la piscina, su aireador, escaleras interiores y elementos asociados como tobogán, trampolín y juegos infantiles. También se incorporan croquis y anteproyectos de camarines, planos de cabinas, chimenea, casa de bombas y cubierta de terraza, además de detalles de celosías y bar. El conjunto evidencia un levantamiento completo del diseño y funcionamiento del club, combinando trazados generales, detalles estructurales y componentes recreativos, muchos de ellos complementados con anotaciones técnicas y observaciones de obra.
Description
19 planos; papel diamante + 3 croquis; papel diamante
Keywords
Plano, Croquis


