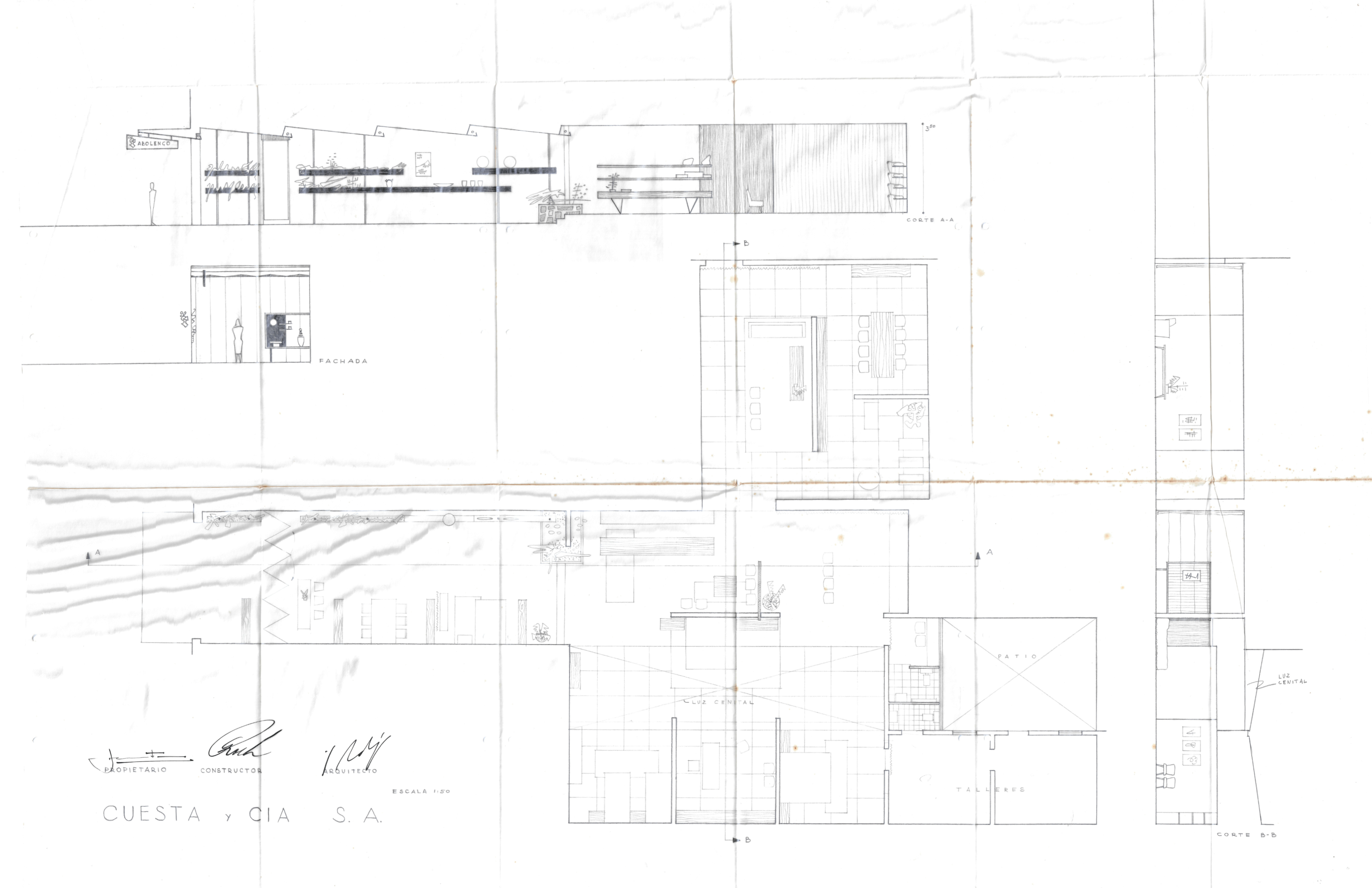
Abolengo Cuesta y Cía.
Date
1951
Journal Title
Journal ISSN
Volume Title
Publisher
Universidad de Valparaíso
Authors
Mondragón, Pablo
Abstract
Plano de tienda Abolengo ubicada en Viña del Mar, escala 1:50, corte A-A y corte B-B. Plano de ubicación y dos croquis de perspectiva.
Description
2 planos en papel diamante; 2 croquis en papel diamante
Keywords
Croquis, Plano tienda


