Importadora e Industrial López y Cía Ltda
Fecha
S/F
Título de la revista
ISSN de la revista
Título del volumen
Editor
Universidad de Valparaíso
Autores
Resumen
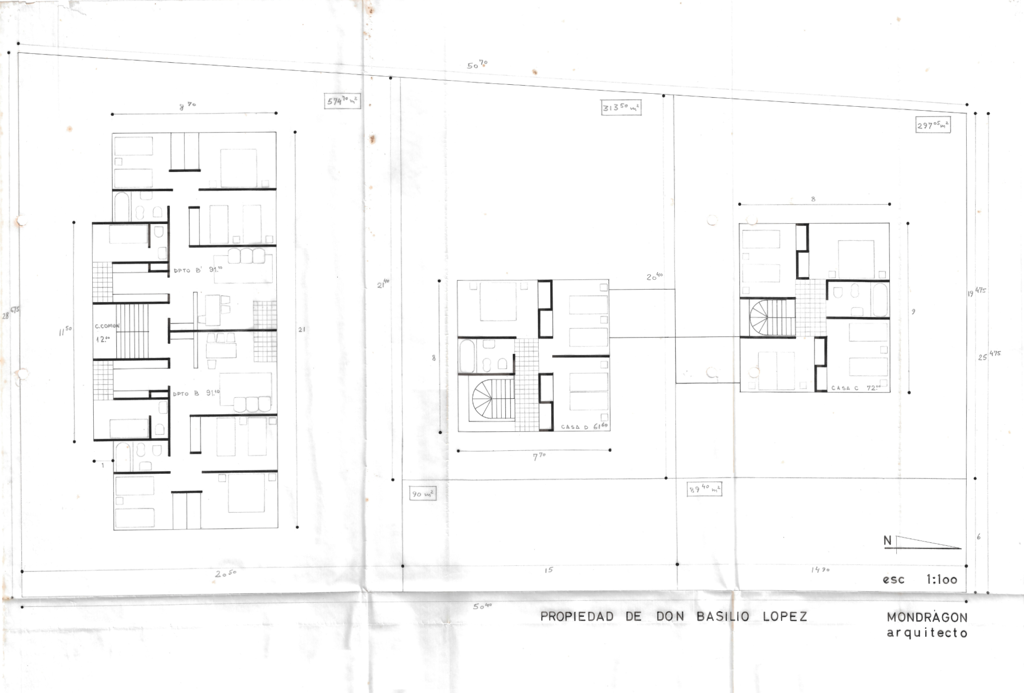
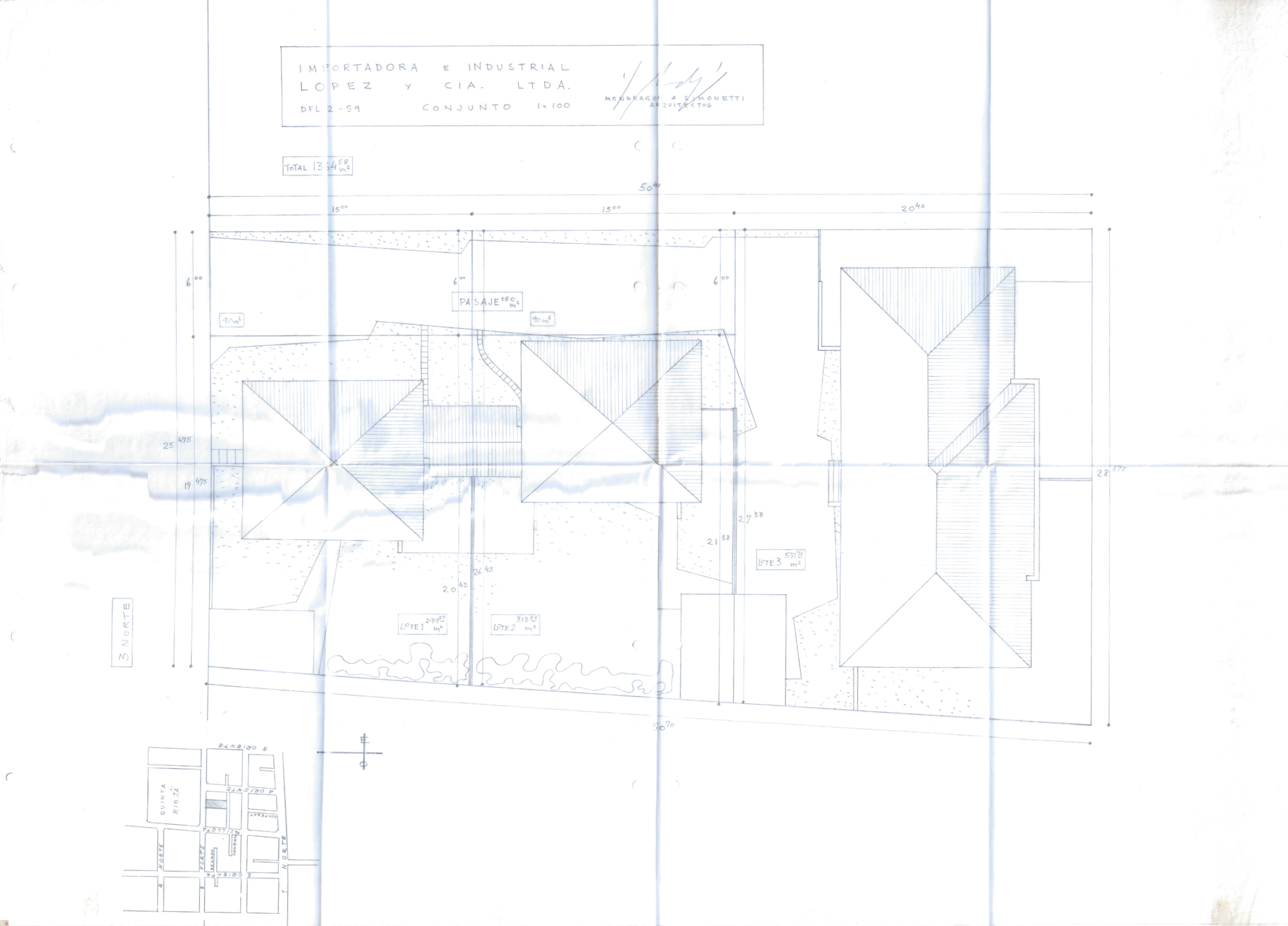
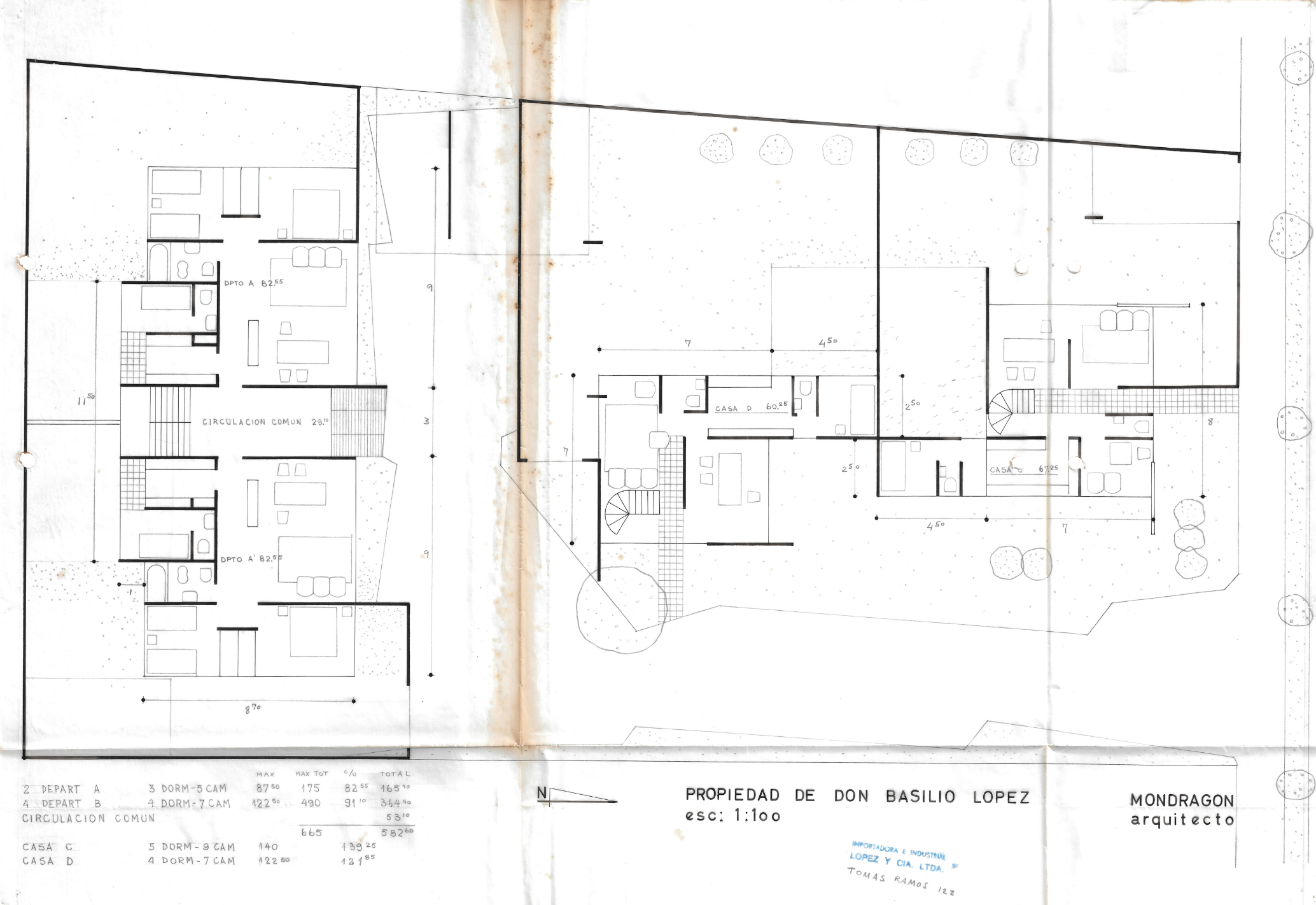
El proyecto Importadora e Industrial López y Cía. Ltda., propiedad de Basilio López, ubicado en la comuna de Viña del Mar, está compuesto por un conjunto de planos y un croquis que documentan la propuesta arquitectónica del edificio. Los planos incluyen la planta general del inmueble en escala 1:50, así como las fachadas y cortes estructurales que permiten observar la organización interna y externa del proyecto. También incorpora detalles constructivos en escalas específicas, según corresponda a cada sección del plano.
El croquis adjunto ofrece una vista preliminar del volumen y la distribución general del edificio, complementando la información técnica de los planos y facilitando la comprensión del diseño proyectado.
Descripción
8 planos; papel diamante + 1 croquis; papel diamante
Palabras clave
Plano, Croquis


