Casas económicas para don Pablo Wagner B.
Date
1959
Journal Title
Journal ISSN
Volume Title
Publisher
Universidad de Valparaíso
Authors
Abstract
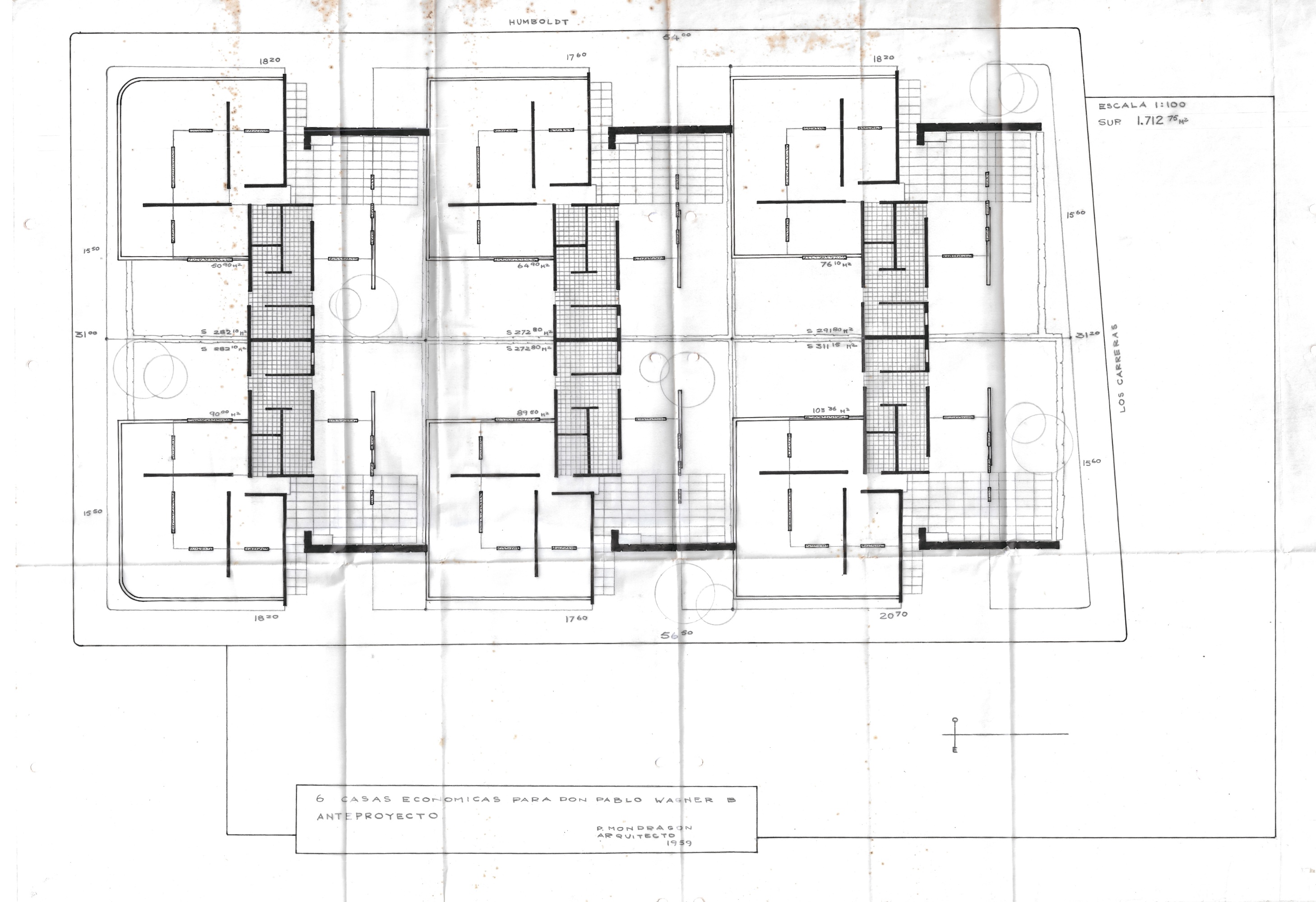
El proyecto Casas Económicas para Don Pablo Wagner B., correspondiente al modelo Casa Tipo K, está conformado por dos planos principales. El primero corresponde al anteproyecto, donde se presenta la planta arquitectónica en escala 1:50, junto con los detalles del terreno asociados. El segundo plano complementa la documentación con los detalles de planta en escala 1:100, proporcionando una visión general del conjunto de seis viviendas económicas proyectadas para el propietario.
Description
2 planos; papel diamante
Keywords
Plano casa


