Casa para el Dr. José Bengoa
Archivos
Fecha
S/F
Título de la revista
ISSN de la revista
Título del volumen
Editor
Universidad de Valparaíso
Autores
Resumen
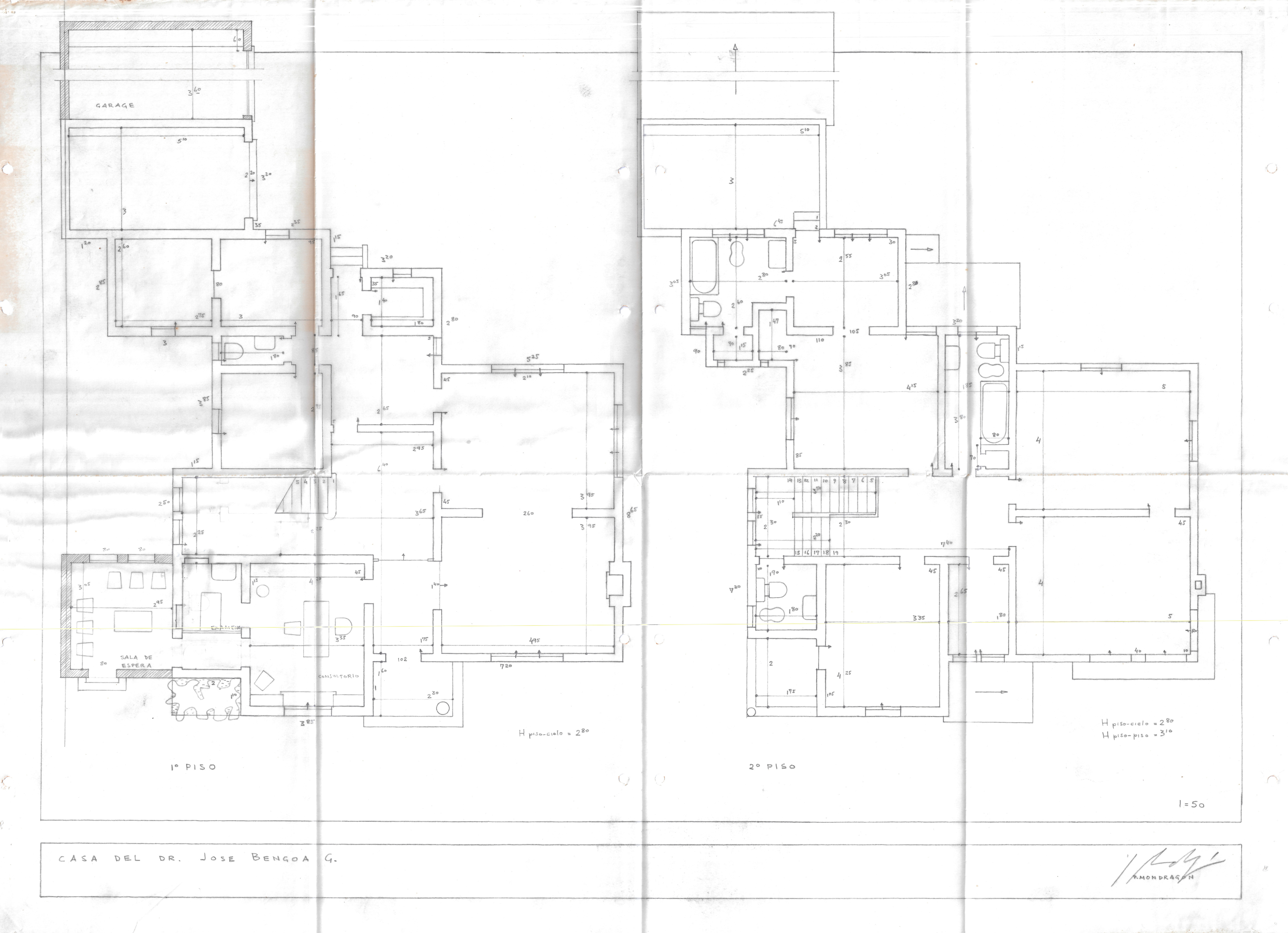
El plano corresponde a la casa del Dr. José Bengoa G. y muestra la distribución de un inmueble de dos pisos dibujado a escala 1:50. El primer piso incluye un garage, varias dependencias de servicio, un baño, áreas de circulación y amplios espacios sociales como sala de estar y sala de comedor o juegos. El segundo piso concentra las zonas privadas, con varios dormitorios, dos baños completos, un baño adicional más pequeño y una circulación central conectada a la escalera. En conjunto, el plano presenta una vivienda amplia, con áreas bien diferenciadas entre servicio, vida social y dormitorios, además de una organización interna detallada mediante cotas y accesos claramente definidos.
Descripción
1 plano; papel diamante
Palabras clave
Plano casa


